Η τροπολογία για το Μνημείο του Αγνώστου Στρατιώτη.
Η τροπολογία “Προστασία της ακεραιότητας και της κατά προορισμό χρήσης του Μνημείο του Αγνώστου Στρατιώτη” των Υπουργείων Εθνικής Άμυνας (ΥΠΕΘΑ), Προστασίας του Πολίτη και Δικαιοσύνης, κατατέθηκε στο νομοσχέδιο του Υπουργείου Υποδομών και Μεταφορών “Σύσταση και οργάνωση του νομικού προσώπου δημοσίου δικαίου με την επωνυμία Υπηρεσία Πολιτικής Αεροπορίας και άλλες διατάξεις αρμοδιότητας του Υπουργείου Υποδομών και Μεταφορών”.
Με την τροπολογία ανατίθενται αρμοδιότητες:
- στο ΥΠΕΘΑ για τη λήψη όλων των αναγκαίων μέτρων για τη συντήρηση, τη φροντίδα και την ανάδειξη του Μνημείου, κατά τα ειδικότερα οριζόμενα,
- στην Ελληνική Αστυνομία για την τήρηση της τάξης σύμφωνα με τις κείμενες διατάξεις.
Αναλυτικά η εν λόγω τροπολογία αναφέρει:
Άρθρο μόνο
Προστασία της ακεραιότητας και της κατά προορισμό χρήσης του Μνημείου του Αγνώστου Στρατιώτη
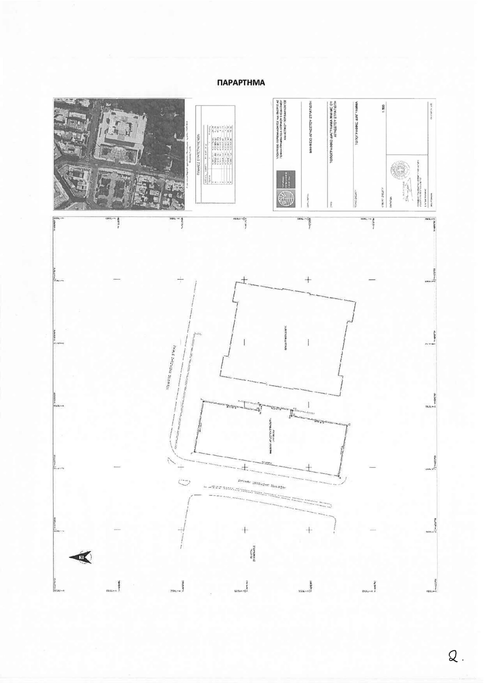
1. Στον χώρο μπροστά από το Μνημείο του Αγνώστου Στρατιώτη, επί της Λεωφόρου Βασιλίσσης Αμαλίας έναντι της Πλατείας Συντάγματος στην Αθήνα, με στοιχεία Α, Β, Γ, Δ, Ε, Ζ, Η, Θ, Α όπως εμφαίνεται στο διάγραμμα κλίμακας 1:500 του Παραρτήματος του παρόντος, ως χώρο ιδιαίτερης ιστορικής και εθνικής σημασίας, και για τη διαφύλαξη της ακεραιότητας και της κατά προορισμό χρήσης του Μνημείου απαγορεύονται από την έναρξη ισχύος του παρόντος:
α) Η χρήση ή κατάληψη της επιφάνειας του χώρου για οποιονδήποτε σκοπό πέραν της επίσκεψης του Μνημείου και της ανάδειξης της σημασίας του,
β) η οποιαδήποτε αλλοίωση του χώρου,
γ) η πραγματοποίηση της οποιασδήποτε δημόσιας υπαίθριας συνάθροισης υπό την έννοια της περ. 1 του άρθρου 2 του ν. 4703/2020 (Α΄ 131), συμπεριλαμβανομένων και της αυθόρμητης και της έκτακτης υπαίθριας δημόσιας συνάθροισης υπό την έννοια των περ. 4 και 5 του ανωτέρω άρθρου 2.
2. Όσοι παραβιάζουν την παρ. 1 τιμωρούνται με φυλάκιση μέχρι ενός (1) έτους ή με χρηματική ποινή, εφόσον δεν τιμωρούνται βαρύτερα από άλλη διάταξη.
3. Το Υπουργείο Εθνικής Άμυνας λαμβάνει όλα τα αναγκαία μέτρα για τη συντήρηση, τη φροντίδα και την ανάδειξη του Μνημείου και του χώρου της παρ. 1, είτε με ίδια μέσα, είτε μέσω ανάθεσης σχετικών συμβάσεων.
4. Για την τήρηση της δημόσιας τάξης, συμπεριλαμβανόμενης της παραβίασης της παρ. 1, αρμόδια είναι η Ελληνική Αστυνομία σύμφωνα με τις κείμενες διατάξεις.
